Nyheter

Vill ta över mark inom spårområde

Nyheter I dag påbörjar kommunen samråd kring detaljplanen för fastigheten Bor 1:20, med flera, i centrala Bor.

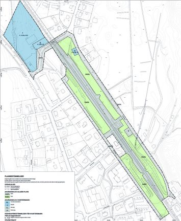
Bild över planområdet. Bild: Värnamo kommun

Detaljplaneförslaget syftar till att aktualisera en äldre gällande detaljplan för att möjliggöra för Värnamo kommun att överta ett stort markområde inom järnvägsområdet som i dag ägs av Trafikverket. Det cirka 5,6 hektar stora planområdet är beläget i centrala Bor och består i dag till största delen av mark för jänvägsändamål, några gator och ett område med industrimark.

Planförslaget innebär att användningen för området ändras från järnvägsändamål till allmän parkmark. En infartsgata från riksväg 27, som i dag ligger på privat fastighet, kommer att planläggas för gata med kommunalt huvudmannaskap. När detaljplanen får laga kraft kan kommunen därmed lösa in samtliga ytor med kommunalt huvudmannaskap och överta tidigare planlagd mark med järnvägsändamål från Trafikverket.

Intresserade kommuninvånare har knappt en månad på sig att tycka till om planerna.

Taggar

Dela


Lämna ett svar

Din e-postadress kommer inte publiceras. Obligatoriska fält är märkta *